Guardian Angel Carers

BEFORE

Debbie contacted us as she was setting up a new business and moving into a new premises in York.

We had furnished an office previously, for another business that Debbie works for, so she was aware of us and our work.

She needed help planning the new office layout and picking out furniture to suit.

DURING

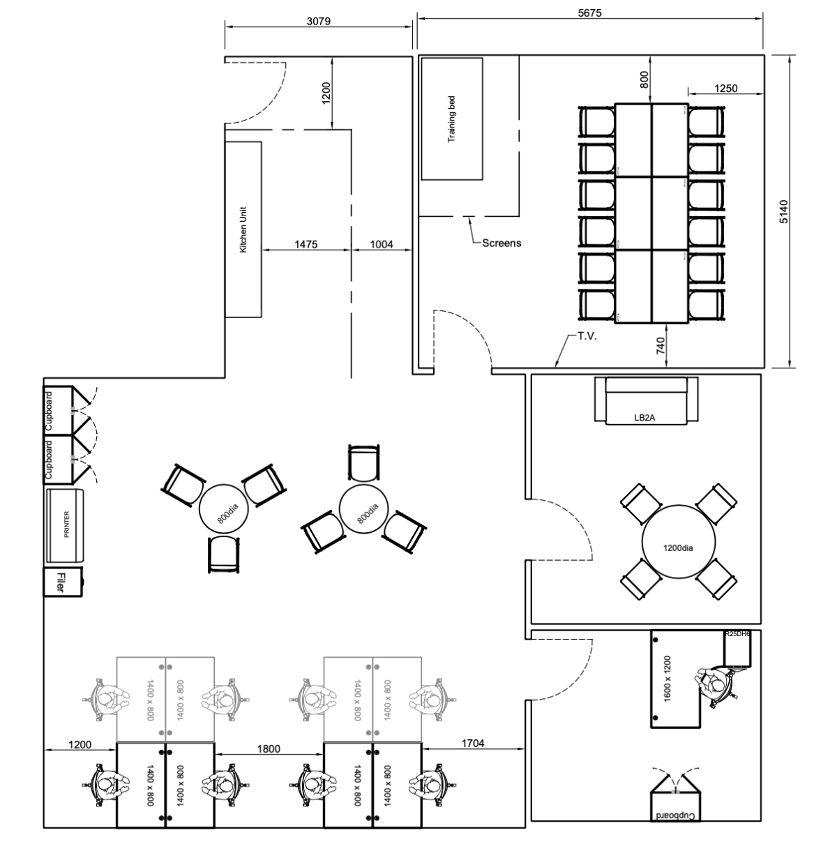
We met with Debbie onsite at the new premises and measured up each room and discussed Debbie’s vision for how she wanted the new office to look. 

The plan for the new premises consisted of an open plan office, kitchenette and canteen space for the staff to have lunch, a client meeting room, a training room and a director’s office.

Debbie had a good idea of what items of furniture she required in each room, but required our expertise in how it would be set up each in each section of the space, and what styles of furniture would be suitable for their environment.

We put together a 2D layout of the space and put furniture options together for each area. Debbie shared the company colour pallet with us and required the furniture to reflect the business’s branding.

We worked together until the furniture and colour scheme in each room was perfectly matched with their requirements.

AFTER

Our team delivered and installed the furniture in 2 phases, due to a delay on the electrics.

They were holding interviews the week after the install was scheduled, so asked whether we could deliver in 2 stages to ensure we could set up the meeting space so that the interviews could go ahead, and then delay delivery of the furniture for the main office and training room to the following week.

Her wishes were granted, and she was very pleased with the delivery of the furniture.  Here is what Debbie had to say

"Jenna came out and we discussed ideas and my vision for how I wanted the new office to look, Jenna took measurements and sent me a plan with ideas for furniture and fabrics for chairs. It was no trouble getting different quotes, sending swatches, and going back and forth until we got it right.  The delivery and installation process was great, the guys were very friendly but also professional and made sure everything was taken away and the furniture was cleaned. The office looks great and since initial installation we have ordered few additional pieces. I would highly recommend."

 

Workspace Logo

We have moved to a New & Exciting Showroom in Wakefield. 

Garden Street, Wakefield, WF1 1DX

0113 272 1341

Offering all the same great service and products, that you can come and take a look at. 

Plenty of Parking, and always a brew on the go!

Come and see us anytime!!!

 

Check out our current Big Deals Brochure - with plenty of offers to be had...

Download Here.