HALE Project

Creating an engaging and flexible space for Bradford-based charity, Hale 

Bradford-based charity Hale provides mental and physical self-care outreach programs, activities, and education to the most vulnerable in our communities. When they asked us to create an engaging space for their clients and staff, we couldn’t wait to get started.  

The challenge:  

Create flexible and engaging space over two floors including the entrance and stairwell. One floor was multi-use so needed zoning and flexibility, the other floor comprised the staff working area, needing desk areas and breakout space for meeting and collaborative work. As a charity, the budget was key, and Hale was very keen to make use of as much pre-loved furniture as possible.  

Our solution: 

With our interior design partner One6Design (link to open in a new window), we visited the site to get a feel for the space and to really understand the client’s needs. With space at a premium and flexibility a big part of the brief we thought carefully about how each section could be zoned – using design techniques and/or furniture.  

We created a design & furniture mood board [link to pdf download] to help consolidate the ideas and give the client something to show to their stakeholders. This covered everything from ideal layout and furniture down to paint finishes for walls and feature areas.  

When it came to implementation, used desks were teamed with new task chairs, pre-loved kitchen chairs were paired with new tables, and we supplied and installed a range of breakout seating, along with worktables and functional, colourful seating.  

Our blueprint for the design allowed Hale to contract their own decorating team to work with the colour schemes we suggested, and also gave them the freedom to source items for feature cork walls and kitchen spaces. This helped them make the most of their budget whilst staying on brand.  

The client says: 

“The prospect of reconfiguring our entire HQ, considering new items of furniture, layout and overall finish was a really daunting task. However Re:Work have been with us all the way. From helping us with the original design, working to our budget and flexibility around delivery of items you have made the whole experience as easy and as stress free as possible.  

The delivery and installation team were really helpful… and I feel that we have the workspace that reflects the great organisation that we are.” 

Sonjia Peers – Chief Executive Officer, Hale Project. 

Contact us to find out how we can help with your next project.  

Find out more about Hale here

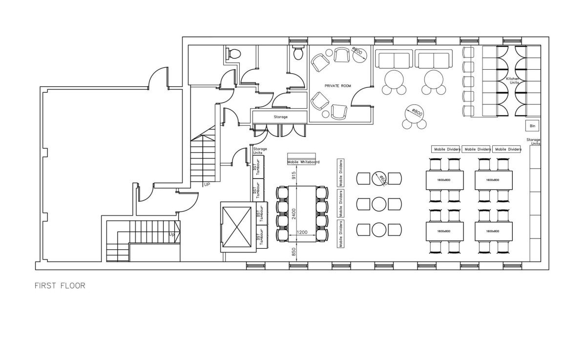
Design for the first-floor multi-used zoned space.
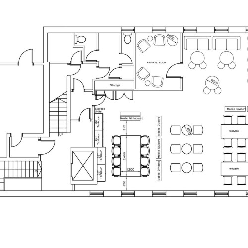
Our layout suggestion for the second-floor workspace
Workspace Logo

We have moved to a New & Exciting Showroom in Wakefield. 

Garden Street, Wakefield, WF1 1DX

0113 272 1341

Offering all the same great service and products, that you can come and take a look at. 

Plenty of Parking, and always a brew on the go!

Come and see us anytime!!!

 

Check out our current Big Deals Brochure - with plenty of offers to be had...

Download Here.