LEDA

Maximising space usage

LEDA was formed in 1997 as a multidisciplinary partnership of design engineers and architects committed to creating sustainable, environmentally friendly buildings. 

 

They initially got in touch with Re-Work as our values aligned in terms of our Eco Credentials and were keen to explore the idea of an interior design project to overhaul their current office. After an initial site survey and discussions to gain an insight into the way the business worked, the flow of the office, what the rest of the team wanted – alongside practicality like power and data points – we produced a range of technical drawings and mood boards to fully communicate the options proposed. 

 

While choosing what to showcase to their team, we carefully considered their brand DNA as well as the importance of sustainability and how the furniture we would be choosing had an impact on the environment – looking to work with a range of used furniture as well as new furniture that was sourced sustainably from suppliers with great environmental credentials.  We also needed to encompass the brand palette within the finishes and fabrics of the office space.

 

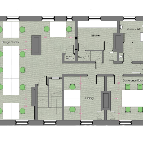
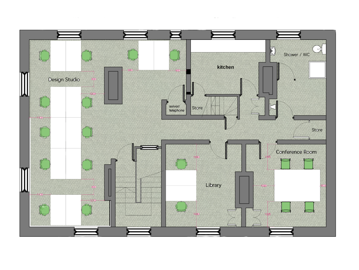
Furniture choices worked around colours such as green ergonomic seating options, Swiss Elm desking finishes, green desk screens and earth tone acoustic panels and carpets, we then looked at the most advantageous spatial utilisation. 

 

One of the challenges we found was around the size and style of desking requested, so part of our role on a project like this is to look outside the box and find a way to make the layout work, and we came up with a range of plans to convey our ideas of how the space could be utilised most effectively. 

 

After further discussions, we were able to arrive at final layouts, which then allowed us to create a real-life rendering of what the space would look like once all applications were finished and ready to go. The CAD renderings were part of our final communication package as a way to fully depict our vision.

Workspace Logo

We have moved to a New & Exciting Showroom in Wakefield. 

Garden Street, Wakefield, WF1 1DX

0113 272 1341

Offering all the same great service and products, that you can come and take a look at. 

Plenty of Parking, and always a brew on the go!

Come and see us anytime!!!

 

Check out our current Big Deals Brochure - with plenty of offers to be had...

Download Here.