Libertas

Maintaining brand DNA through interior design

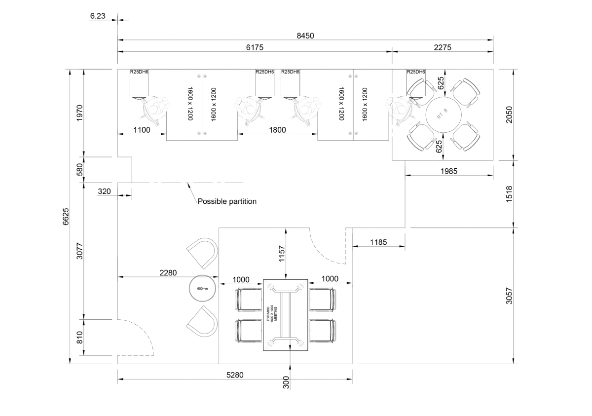
Our discussion with Libertas helped us understand their needs for their office renovations. The main goals we had to achieve were a visitor area, the first thing seen by new arrivals, an office space with bench desking for four people and a meeting room. 

 

The furniture also had to mirror the company colours of various blues and greys. We also had to deal with the challenge of separating the open plan of the visitor area from the office area. We proposed two partition options: one made of acoustic panelling and another made of woodwork. Both options would be suitable for a statement logo display making a great first impression upon entering. 

 

For the visitor area, soft seating was chosen to reflect the company colours with a round coffee table. For the bench desking Halifax Oak finish with black legs was chosen with grey fabric ergonomic chairs. In the meeting room, a pyramid leg table was chosen in black and OSB edge finish to give it an extra design element. 

libertas logo full color v2
Libertas Accountant Main Office first proposal rendering.
Workspace Logo

We have moved to a New & Exciting Showroom in Wakefield. 

Garden Street, Wakefield, WF1 1DX

0113 272 1341

Offering all the same great service and products, that you can come and take a look at. 

Plenty of Parking, and always a brew on the go!

Come and see us anytime!!!

 

Check out our current Big Deals Brochure - with plenty of offers to be had...

Download Here.